다정하게 모여 지혜롭게 나눈 집 양산 증산리 파우제 > HOUSE
다정하게 모여 지혜롭게 나눈 집 양산 증산리 파우제
- 관리자 오래 전 2025.11.10 14:17 HOUSE 인기
-
789
0
경제적인 집짓기로 시작해 현실적인 고민을 품은 삼대의 한 집 살이.
마당을 두고 가족은 서로 나누고 마주 보며 아이에게 선사할 여유와 쉼을 즐긴다.

편안함과 쾌적함,
생활의 안정감을 모두 품은 두 세대 중정집
높은 부동산 가격과 만만치 않은 건축비용에도 불구하고 주택살이를 꿈꾸는 사람들은 지인들 또는 가족들의 공동 건축을 하나의 대안으로 생각한다.
대가족 생활에서 오는 불편한 점들을 건축적으로 잘 풀어낸다면, 현대사회에서 우리가 대면하고 있는 아이 양육이나 고독 등 여러 문제의 합리적인 해결방안이 될 수 있을 것이다.
몇 해 전 아이가 태어난 건축주 부부는 부모님과 함께 양산시 증산리의 택지를 구매하고, 삼대가 어울려 사는 주택을 건축하기 위해 우리를 찾아왔다.
건축주 부부와 아이, 그리고 부모님은 모여 살지만, 각자의 사생활 또한 보호되어야 했다. 그래서 적절히 만나고 분리되는 공간 구성이 중요했다.
두 세대는 중정을 공유하지만, 중정과 면한 각자의 현관을 통해 각 세대로 진입한다.
각자의 주방과 거실을 가지고 생활을 꾸리면서도 마당 하나만 가로지르면 다른 세대로 건너가 함께 식사하거나 담소를 나누는 것도 어렵지 않다.
각 세대의 평면 구성은 취향과 요구 사항에 따라 다르게 적용되었다. 거실을 예로 들면 세대별 층고나 보고자 하는 뷰, 마당으로 열리는 방향, 시선의 교차 등이 고려되었다.

인구 유동이 많은 2차선 도로에서 본 주택. 외부 창문을 최소화해 프라이버시를 확보하고자 했다.

건축주 세대 거실 앞에 미니 풀장을 두어 안전에 더욱 신경 쓸 수 있다.

날씨가 좋을 때면 거실 앞 툇마루에서 차분히 책을 읽기에도 좋다.

층고가 5.5m에 달하는 건축주 세대 거실.


부모님 세대의 거실은 우드와 그레이, 투톤으로 단정하게 정돈되어 마당을
바라보도록 배치되었다.
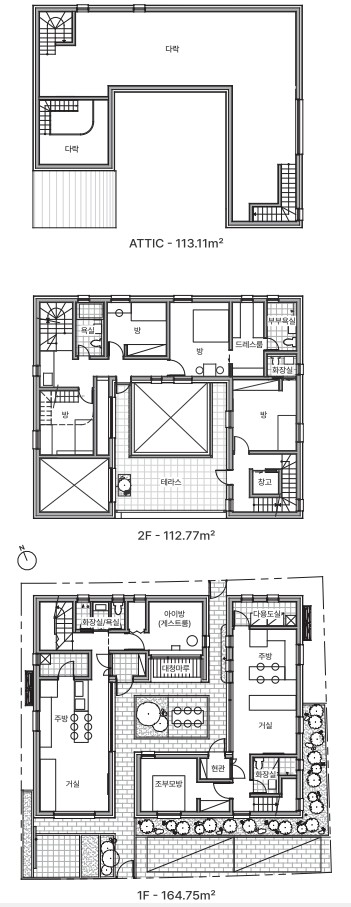
HOUSE PLAN
대지위치 : 경상남도 양산시
대지면적 : 299.7㎡(69.48평)
건물규모 : 지상 2층 + 다락
거주인원 : 5명(부모님, 건축주 부부, 자녀 1)
건축면적 : 164.75㎡(49.83평)
연면적 : 277.52㎡(83.94평)
건폐율 : 54.97%
용적률 : 92.59%
주차대수 : 2대
최고높이 : 8.96m
구조 : 철근콘크리트조
단열재 : THK130 비드법단열재(가등급), THK200
비드법단열재(가등급)
외부마감재 : 벽돌형 타일, 컬러강판
담장재 : 두라스택 S 시리즈
창호재 : KYC 시스템창호
에너지원 : 도시가스
전기·기계·설비 : ㈜광명토탈엔지니어링
구조설계 : ㈜대영구조기술단
감리 : 건축사 김영용
설계 : 건축사사무소 1458
INTERIOR SOURCE
내부마감재 : 벽 - 벽지, 자작나무합판 / 바닥 -
디엔메종 강마루, 타일
수전 등 욕실기기 : 아메리칸스텐다드, 대림
계단재 · 난간 : 자작나무 합판 + 금속 난간
현관문 : 현장제작
중문 : OC 도어
방문 : 예림도어

채광과 환기의 확보는 도시에서는 좀 더 신중하게 다뤄져야 한다. 채광과 환기를 위해 창을 커다랗게 내었다가 프라이버시 문제로 커튼이나 블라인드를 종일 쳐야 할 수도 있다.
이런 상황의 해결 방법 중 하나가 중정 주택이다. 중정으로 큰 창을 내 외부 시선을 피하고, 채광과 환기를 확보함과 동시에 실내에 개방감을 높인다.
여기에 위요감 있는 안락한 마당을 가질 수 있다는 장점이 있다.
증산리 주택 파우제(Pause)에는 여러 가지 형태의 공간이 있다. 아이는 계절에 따라 또 날씨에 따라 변화하는 마당에서 가족이나 친구들과 놀고, 다락 천창 아래 누워 하늘에 지나가는 구름을 바라보기도 할 것이다.
복층형 놀이방의 계단을 오르내리며 탐험도 한다. 곳곳의 화단에 물을 주고, 볕이 좋으면 마루에서 그림을 그린다. 마당을 가로질러 할머니, 할아버지와 교감하고, 2층 베란다에서 열리는 바비큐 파티에 한 자리를 차지한다.
공간의 형태가 다양할수록 사람의 다양한 행위를 담아내고, 다양한 체험과 기억을 가질 수 있게 한다.
이 아이가 가지게 될 집과 가족에 대한 기억은 얼마나 풍요로울까. 아이가 커서 가끔 옛 주택에서의 즐거운 생활을 떠올리는 것이 바쁜 일상 속 휴식(Pause)이 되길 바라본다. 글 : 최새벌

건축주 세대 주방에서 바라본 마당. 맞은편에 부모님 세대 거실과 맞닿아 있다. 건축주 세대의 거실과는 엇갈리게 놓였다.

놀이방으로 쓰는 2층 방에는 곡면과 직선 계단이 독특한 조화를 이루는 다락을 두었다.

2층 테라스는 중정주택에서 부족하기 쉬운 외부 공간 면적의 갈증을 해소해 준다.

저녁에도 주변 공간에서 흘러나오는 빛으로 중정은 낮처럼 환하다.

건축가 최새벌 : 건축사사무소 1458
건축사 최새벌은 2007년 부경대학교 건축학과 졸업 후 ㈜일건건축사사무소에서 실무를 쌓았다.
2010년 독일학술교류처(DAAD)의 장학생 자격으로 독일 부퍼탈대학교 건축학 석사 학위를 받았다.
2018년 ‘건축사사무소 1458’을 설립하고, 2019년 부산건축상 금상, 2021년 부산건축상 장려상과 동래건축문화상 최우수상을 수상하였고, 2022년 부산건축상 동상과 장려상을 수상하였다.
현재 동아대학교 겸임교수로 활동 중이다.
070-8864-0401 | www.1458.co.kr
#최새벌건축사 #1458건축사사무소 #파우제
- 이전글땅의 결 위에 앉은 고요 양산 지산리 주택2025.11.11
- 다음글아치 안에 담아낸 카페 하우스 고양 향동동 아치리얼2025.11.05
댓글목록
등록된 댓글이 없습니다.