너른 마당 속 가족의 행복 광주 수완동 두마당집 > HOUSE
너른 마당 속 가족의 행복 광주 수완동 두마당집
- 관리자 오래 전 2025.11.18 16:35 HOUSE 인기
-
1,361
0
40여평 복층 주택 속에 세 가족과 반려묘의 행복을 담기 위한 고민은 다채로운 공간 구성이라는 결과로 이어졌다.
따뜻한 나무의 색감과 프라이빗한 중정 속에 담기는 햇살이 매력적인 집. 열정적인 건축주와 노련한 건축가가 만나 시너지를 낸 가족의 드림하우스를 만나다.

아이의 행복을 위한 공간 구성
건축주 부부는 맞벌이 부부로 자녀 한 명을 두고 있다. 집을 짓기로 마음먹고 외곽의 전원주택 토지까지 두루두루 알아봤으나, 현실적인 기반시설이나 출퇴근 문제 등이 걸림돌이 되었다.
그러다 결국 광주 시내에서 분양하는 토지를 계약하게 되었다. 가격은 비싼 편이었으나 워낙 입지가 좋았기 때문에 만족하였다.
건축주는 평소 눈여겨 봐왔던 우리에게 주택 디자인을 의뢰하게 되었다.
건축주 부부가 희망하는 점과 우려되는 부분을 해결할 방법에 대해 심도 있게 의견이 오고 갔다.
먼저 40여 평 가량의 크지 않은 복층집을 계획하되, 아이의 행복한 주택 살이가 가장 중요한 출발점이기에 아이와 친구들이 즐겁고, 가족들 모두 재미있게 지낼 수 있는 집을 원했다.
다만, 인근에 자리 잡은 타운하우스가 훨씬 높은 지대에 들어서 땅의 입지가 주변 시선에 노출되기 쉬운 게 문제였다.
여기에 건축주가 추가로 원하는 부분이었던 서재와, 다양한 용도로 쓰일 수 있는 숨겨진 공간, 그리고 반려묘도 함께 재미있게 지낼 만한 공간구조 까지 가지각색의 고민들이 모인 끝에 가족의 집이
완성되었다.
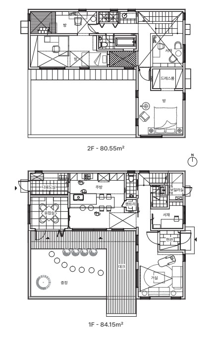
집의 구성은 크게 1층은 거실, 주방, 썬룸, 중정으로 이어져 내외부 동선이 자유로운 공용공간으로, 2층은 아이방과 부부침실만 있는 사적공간으로 분리하였다.
일단 아이와 즐겁게 지낼 수 있는 2층 공간을 전제로 아이의 영역을 넓게 잡았다. 2층 부부침실을 제외하면 나머지 공간은 아이 공간으로 채웠다.

교차되는 지붕 구조체와 난간 등에 다양한 모습으로 적용된 목재는 이 집의 메인 콘셉트 컬러 역할을 하며 아늑한 가족의 집을 완성한다.


오각형의 창이 돋보이는 침실. 커튼박스를 방 전체로 연장해 라인 조명을 위한 공간으로 구성했다.

아이방에는 공부를 위한 책상이 책장과 함께 넉넉한 규모로 구성됐다. 일부 오픈된 천장 공간이 시각적으로 지루하지 않은 인상을 준다.
아이방도 공부와 취침 영역, 놀이 영역을 구분하고 다락을 마련해 놀러 오는 친구들과 추억을 쌓을 수 있도록 하였다.
익스트림 장치인 그물망 바닥은 건축주의 가장 큰 요구사항이었다. 서재와 숨은 공간은 계단의 레벨을 활용했는데, 위쪽은 서재, 아래는 스킵다운하여 숨은 공간을 두었다.
우려되었던 프라이버시 확보 문제는 집을 둘러싸는 가벽을 설치하고 그 가벽이 자연스레 채광은 받아들이고 시선을 차단할 수 있는 적절한 높이로 집을 두르게 하였다.
그 덕분에 프라이빗한 중정 마당과 아들과 아빠가 축구도 할 수 있는 너른 앞마당을 가지게 되었다.
건축주 부부는 설계자의 방향 제시에 대부분 동의하였다. 아울러 인테리어 자재나 조경 아이디어에 관해서는 직접 발로 뛰며 지속적인 공부를 하였고, 실제 적용에도 참여하였다.
중정 공간도 제대로 쓰일 수 있게끔 타프도 설치하고 썬룸에 바비큐 식탁을 두는 등 적극적으로 집을 데코레이션 하였다.
설계의 큰 방향은 설계자에게 맡기고 건축주 부부는 전등, 패브릭, 가구, 소소한 소품으로 본인들 취향에 맞게 꾸며 시너지를 낸 바람직한 집짓기 현장이었다.
글 : 홈스타일토토 임병훈 소장

그물망 침대는 새로운 감각으로 풍경을 즐길 수 있는 뷰포인트이자 휴식공간이다.

단차가 발생한 부분에도 틈새 수납을 포함해 공간을 효율적으로 활용했다.


다양한 방향으로 낸 창으로 햇빛을 받아들이는 거실.

주방은 별도의 다이닝 없이 큰 아일랜드에 의자와 와인냉장고를 포함해 오래 머무를 수 있는 공간이다.

자갈과 데크로 구성한 마당에 타프를 설치해 더욱 아늑한 야외 휴식 공간을 만들었다.
HOUSE PLAN
대지위치 : 광주광역시 광산구 수완동
| 대지면적 : 422㎡(127.66평)
| 건물규모 : 지상 2층
| 건축면적 : 84.15㎡(25.46평)
| 연면적 : 164.7㎡(49.82평)
| 건폐율 : 19.94%
| 용적률 : 39.03%
| 주차대수 : 1대
| 구조 : 경량목구조
| 단열재 : 벽 - T140 단열재(가급) 그라스울 + T50 비드법 단열재 1종3호 / 기초 - T60 + T100 비드법 2종1호 단열재(가급) / 지붕 - T185 연질수성폼(가급)
| 외부마감재 : 외단열 위 콘크리트 타일, 합성목사이딩
| 지붕재 : POS-MAC 내부식성 강판
| 창호재 : 디크닉
| 철물하드웨어 : 심슨 스트롱타이
| 에너지원 : 도시가스
| 내부마감재 : 벽, 천장 - 삼화친환경페인트 / 바닥 - 구정 강마루
| 타일 : 포세린 타일(국산+수입)
| 수전 및 욕실 기기 : 아메리칸스탠다드, 이누스
| 조명 : 공간조명, 수입조명
| 도어 : 성우스타게이트, 영림도어
| 주방가구 : 에넥스, 영가구
| 인허가 : TOTO건축사사무소
| 시공 : JCON
| 건축/인테리어 디자인 : 홈스타일토토 02-720-6959 www.homestyletoto.com
홈스타일토토 : 임병훈 소장
13년간 100채가 넘는 집을 디자인했으며, '디자인(임병훈 소장) + 인허가(정신애 소장) + 협력 시공사' 세 팀이 하나 되어 매끄러운 집짓기를 진행한다.
보면 볼수록, 살면 살수록 괜찮은 주택디자인을 추구하며, 언제나 다음 집의 주인공을 기다리고 있다.
02-720-6959 | www.homestyletoto.com
- 이전글경북에서 직접 만나는 빠르고 안전한 대안 케이씨산업 PC 모듈러 샘플 하우스2025.11.24
- 다음글카페를 열다 1호점 차분함을 음미하는 바닷가 카페2025.11.18
댓글목록
등록된 댓글이 없습니다.