추억 속 동산에 지은 집 MINIMAL BOX HOUSE > HOUSE
추억 속 동산에 지은 집 MINIMAL BOX HOUSE
- 관리자 오래 전 2025.12.16 10:38 HOUSE 인기
-
1,372
0
숨 가쁘게 보냈던 일상에서 한발짝 물러선 건축주. 고향의 추억 속 소나무 동산을 찾아 집을 지었다. 가득 채우기보다 비우고, 꾸미기보다 덜어낸 집을.


주택은 전면의 처마와 일부를 제외하고는 크게 두드러지지 않도록 형태를 갖췄다.

제주도의 A급 석공의 손으로 쌓아올려진 돌담은 주택의 인상에 단단함을 더한다.

주택은 서쪽을 향해 놓여 오후의 햇빛이 거실을 가득 채우곤 한다.
고향으로 돌아온 전원생활의 꿈건축주의 집짓기는 어쩌면 그가 고향을 떠났을 때부터 시작되었을지도 모른다. 치열하게 살아온 건축주는 일찍이 토목사업으로 입지를 다져왔지만,
친구들과 뛰어놀던 작은 동산과 소나무 숲, 병풍처럼 펼쳐진 고향의 산세를 잊지 못했다.
그는 이 땅에 숨 가쁜 나날에 가족과 함께 잠시 쉼표를 남길 주말주택을 짓고자 했다. 그는 시간을 갖고 하나씩 준비해 나갔다.
고향 집 바로 앞에 자리한 동산에 터를 닦았고, 소나무와 영산홍을 수년간 심고 다듬었다.
주말주택이지만 건축주는 혹시 모를 나중을 위해 활용에 한계를 두고 싶지 않았다. 또한 소중한 기억을 가진 이 땅이 가진 풍경이 집 안에 녹아들기를 바랐다.
바람과 때가 무르익었을 즈음 건축주는 그의 꿈을 그려줄 전문가로 에펠건축사무소 황인목 소장과 마주했다.
언젠가 진주 도심에서 만난 병원 프로젝트가 인상 깊었던 건축주가 여러 방면으로 건축가를 수소문할 만큼 공을 들였다.
시공은 건축주가 직접 맡아 진행했다. 평생 그려온 꿈이면서 가족과 함께 머물 집이기에 신중을 더했다.
특히 기초와 골조에 신경을 썼는데, 콘크리트 강도를 상당히 높여 타설해 설비를 위한 배관 타설에 애를 먹을 정도였다고.
그렇게 반년 뒤, 소나무 동산 위에 군더더기를 덜어낸 담백한 주택이 들어섰다.


바닥부터 2층 천장까지 채운 창을 통해 늘 푸른 소나무와 멀리 산능성이까지 조망한다.

기억과 자연을 채우기 위해 비운 집
황인목 소장은 ‘규모가 작고 주변 자연으로 채운 집‘을 위해 건물 자체로 주변을 설명하고 마을을 변화시키기보다는 적당한 위치에 건물을 ‘올려놓는’ 방식으로 문제를 풀어나갔다.
가장 적은 것으로 가장 많은 효과를 내기 위해 주택은 기본적인 ‘박스’ 형태를 띄게 되었고, 컬러 또한 ‘없음’을 완성하기 위한 화이트로 채워 넣었다.
특정 자재에서 연상되는 고유의 물성이 주택으로 옮겨오는 것을 막기 위해 마감재도 민무늬 대리석이 선택되었다.
한편, 주택의 동서남북으로 각기 다른 풍경이 펼쳐지는 상황에서 동선을 긴 계단이나 브릿지로 의도적으로 길게 흐르도록 해 주변 환경과 건축이 얽히며 공간을 채워나가도록 의도했다.
여기에 더해 특정한 물건(오브제)이 아닌, 실내로 들이치는 빛으로 시간의 흐름에 따라 분위기가 바뀔 수 있도록 개구부와 구조의 배치와 크기, 커튼의 컬러까지 고려했다.
주택은 많은 부분에서 ‘비워졌다’. 하지만, 그 공간에 채워진 자연과 시간, 건축주의 추억, 그리고 지금 가족이 꾸려 나가는 일상으로 주택은 늘 가득차 있다.

길게 뻗은 계단 등을 통해 동선에서 주택으로 들어오는 다양한 풍경을 건축과 함께 즐길 수 있도록 의도했다.

현관은 공간에 다소 여유가 있는 만큼 면적을 넉넉하게 할당했다.

1층 침실 모습. 넓게 열어놓은 메인 창과 더불어 측창이 자칫 단조로울 수 있는 침실에 또 하나의 녹색을 더한다.

보이드 공간 한편의 고측창은 시간에 따른 다양한 빛을 연출한다.

2층 브릿지 끝에는 티타임 등을 즐기는 테라스가 놓였다.

인연의 계기가 되어준 ‘하얀메디컬센터’.

동산에 자리한 덕분에 먼 풍경까지 한눈에 담아낼 수 있다.

건축주는 어스름이 질 무렵 소나무와 산능선이 서로 섞이는 순간이 가장 인상 깊다고 전한다.
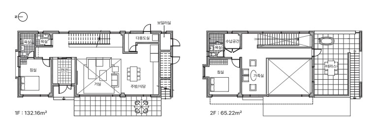
HOUSE PLAN
대지위치 : 경상남도 진주시
| 대지면적 : 768.00㎡(232.32평)
| 건물규모 : 지상 2층
| 거주인원 : 3명(부부, 자녀 1)
| 건축면적 : 132.16㎡(41.18평)
| 연면적 : 197.38㎡(59.70평)
| 건폐율 : 17.20%
| 용적률 : 25.70%
| 주차대수 : 4대
| 최고높이 : 7.1m
| 구조 : 기초 - 철근콘크리트 매트기초 / 지상 – 벽 : 철근콘크리트, 지붕 : 철근콘크리트
| 단열재 : 비드법단열재 2종1호 100㎜
| 외부마감재 : THK30 대리석
| 내부마감재 : 벽 - LX하우시스 베스띠 벽지 / 바닥 – 동화자연마루, 스타투아리오 대리석(현관)
| 욕실 및 주방 타일 : INUS(욕실), 수입타일(주방)
| 수전 등 욕실기기 : INUS
| 주방 가구 : 알로소, 요기보
| 거실 가구 : 알로소
| 조명 : 비춤조명
| 계단재 : 애쉬, 유리난간
| 현관문 : 수입도어
| 중문 : 영림 3연동 도어, 고방유리
| 방문 : 영림도어
| 붙박이장 : 다온주방가구
| 담장재 : 화산석
| 창호재 : AL커튼월 PLS200 ATT90 43T 수퍼로이(Ar) Z:IN 시스템윈도우 43T 수퍼로이(Ar)
| 에너지원 : 도시가스
| 조경석 : 화산석
| 조경·전기·기계·설비 : 건축주 직영
| 구조설계 : 이인구조기술사사무소
| 시공 : 건축주 직영 | 설계·감리 : 에펠건축사무소
건축가 황인목 : 에펠 건축사무소
성균관대학교와 국립 로렌폴리테크닉, 파리-라빌레트 건축학교에서 건축을 수학하고, 프랑스 건축사를 취득했다. 삼우종합건축사사무소에서 실무를 쌓은 후 국립 경상대학교 건축학과
외래교수 및 경남 건축물미술장식품, 남해군 계획위원회 심의위원으로 역임했으며 현재 에펠 건축사무소 대표로 활동 중이다.
드림IT밸리 지식산업센터, 하얀메디컬센터 등 중·대규모 건축과 남해 블루스톤펜션, E4주택 등 소규모 건축 및 다수의 리노베이션, 인테리어 등 창의적 프로젝트를 수행하고 있다.
- 이전글높은 땅 위에서 시원한 경치를 담다 많은 이들이 모이는 자리, 하동 만리진 萬里津2025.12.17
- 다음글땅의 모양을 닮고 추억을 담은 진주 삼각집2025.12.09
댓글목록
등록된 댓글이 없습니다.