이 글은 관리자만 볼 수 있어요.
금산리 STAY > 설계제안
금산리 STAY
- 관리자 오래 전 2026.01.27 10:14 인기
-
166
0
돌담 너머, 내부와 외부를 넘나드는 쉼
건축설계는 계획설계, 기본설계, 실시설계로 이어진다.
대지 여건을 고려한 배치부터 공간의 풍성함을 결정짓는 단면,
세대수와 가족의 취향을 반영하는 평면 계획 단계에서 건축가의 다양한 아이디어를 엿보는 기회를 가져본다.

CONCEPT
가족의 쉼터이자 동시에 스테이를 겸하는 금산리 프로젝트는 정해진 예산과 규모 안에서 최대한 다양한 공간을 통해 다채로운 자유를 느낄 수 있도록 하는 것이 관건이었다.
전체적인 형태나 구조는 심플하게 구성해 효율성을 높이고, 조용하고 아늑한 주변 분위기를 흡수해 내·외부 소통이 원활하도록 동선을 계획했다.
마을과 주변경관에 잘 어우러지도록 벽돌, 돌담 등 자연 재료를 사용해 관리의 편의성도 높이고, 포근한 느낌을 주도록 했다.
돌담은 동시에 외부 시선을 차단하는 역할도 한다. 담장 너머로는 박공지붕만이 보이는 형태이기에 궁금증과 더불어 집의 존재감은 남게 된다.
돌담을 지나면 넓게 마당이 펼쳐지고, 데크라는 조금 더 개인적인 외부공간을 거쳐 내부로 진입한다. 다음으로 또다시 벽으로 둘러싸인 외부공간이 나타나며 내·외부가 점차적이고 순환적으로 흐르도록 했다.



SITE
강원도 춘천시 서면에 위치한 대지는 북한강을 향해 열린 산골짜기에 논과 밭이 계단식의 평지로 이루어진 조건이었다.
주변이 온통 푸르른 자연으로 둘러싸여 있지만, 동시에 가까운 곳에 문화재가 있어 성토나 건물의 높이, 규모 등 여러 가지 제약이 뒤따르는 대지이기도 했다.
주변 어디에서든 건물로 시야가 방해받지 않도록 산세를 따라 펼쳐진 단층 건물이 계획되었다. 남
동향으로 마을이 있기에 자연스레 풍경을 누릴 수 있도록 남동향으로 메인 방향이 설정됐다.
FAMILY
건축주는 다른 지역에 거주하면서, 주말에는 이곳에서 자신만의 공간을 만들고 가족과 함께하는 시간을 갖고자 설계를 의뢰했다.
건축주가 머무는 시간 외에는 다른 사람도 함께 사용하는 공유 공간, 즉 스테이로서의 가능성도 열어두었다.
이용 빈도수나 건축비를 고려하여 규모는 20평대 후반 정도로 요구하였고, 형태적으로는 내부 천장에 서까래가 드러나는 공간과 외관은 박공지붕이 돋보이는 웨스턴 스타일을 원하셨기에 이를 토대로 능선에 둘러
싸인 대지의 특성을 고려해 구성이 시작됐다.

목구조가 돌출되어 구조미를 느낄 수 있고, 개방형 구조로 천장고가 높아 공간이 더욱 넓게 느껴진다.
서까래가 노출된 개방형 공용공간
서까래가 노출되길 원했던 건축주의 요구사항을 반영하고자 나무가 단순한 장식 요소가 아닌 건물 구조로 작동하는 경골목구조로 계획했다
구조체만으로도 심미적 기능을 하기에 안정성과 효율성은 물론 목구조가 테라스와 후면 데크까지 이어지며 더욱 통일감 있는 분위기를 만든다.
주방과 식당은 천장을 오픈시켰지만, 침실과 욕실은 천장 마감을 해 공간의 성격을 구분했다.

침실은 마당과 풍경을 향해 남향 창을 둬 채광을 확보하고, 자연경관을 흡수할 수 있도록 했다.
외부공간도 내부처럼
침실 및 거실은 모두 외부로 시야가 통하는 큰 창을 두어 내·외부 경계를 흐리는 효과를 주었다. 내부 공간 어디에서나 계절의 흐름을 느끼고, 다른 구성원들이 활동하는 모습을 바라보며 생활을 공유한다. 처마가 있는 테
라스나 욕실과 이어진 자쿠지 공간은 외부이지만 매우 사적인 공간으로 구분된다. 주방과 연결된 후면 데크에는 야외 주방시설을 설치해 날씨에 상관없이 바비큐나 김장, 티타임 등 다양한 활용 가능성을 줬다.
복도 쪽의 고정창은 내부 공간과 후면 데크를 시각적으로 연결시켜 체감하는 공간의 크기가 더 커지는 효과를 준다.

사방이 벽으로 둘러싸인 외부 공간. 주변의 시선을 신경 쓰지 않고 자유로이 즐길 수 있는 공간이다.
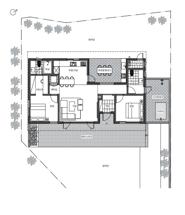
가족의 독립성을 존중하는 영역 분리
부모와 자녀가 함께 사용하는 공간이고, 때론 손님을 맞이해 함께 사용하기에 침실과 욕실 공간을 현관과 후면데크, 거실을 중심으로 양쪽 끝으로 배치해 개인이 사용하는 공간을 분리시켜 줬다.
가족이 함께 생활하기도 하지만, 때로는 각자 독립적으로 휴식을 취할 수 있는 공간을 만들어 각자의 쉼이 이루어지도록 계획했다.

야외 주방시설이 설치되어 있고, 실내 주방과 출입문이 연결되어 있어 날씨에 구애받지 않고 후정을 즐기며 다용도로 사용가능한 외부공간이다.

대지위치
강원도 춘천시
지역지구
자연녹지지역
대지면적
1,033㎡(312.48평)
건물규모
지상 1층
건축면적
103.5㎡(31.16평)
연면적
94.24㎡(28.51평)
HOUSE PLAN
건폐율 : 10.02%
용적률 : 9.12%
주차대수 : 1대
최고높이 : 5.5m
구조 : 기초 - 철근콘크리트
매트기초 / 지상 - 경골목구조
외부마감재 : 외단열 위 적벽돌타일
지붕마감재 : 이중그림자싱글
설계·인테리어 : 건축사사무소 더문
건축가 변은영, 이준호 : 건축사사무소 더문
변은영, 이준호 건축사가 함께 운영하고 있는 건축사사무소 더문은 사용자 중심 디자인을 통해 공감하고 소통한다.
인간의 삶과 건축 간의 상호 보완을 통해 서로의 가치를 향상시킬 수 있도록 고민하며 공간을 담아낸다.
㈜나우동인, ㈜해안종합건축사사무소, 우미건설 등에서 실무를 익혔고, 건축사사무소 더문의 대표로서 강원건축문화제 주거부문 우수상을 수상했다.
현재 주택 및 근린생활시설, 교육연구시설 등 다양한 규모와 용도의 건축 프로젝트를 진행 중이다.
070-5147-6990 | www.archthemoon.com
- 다음글곡선의 처마가 품는 주말의 풍경 여주 반월(半月)2026.01.09
댓글목록
등록된 댓글이 없습니다.