넉넉하고 부드러운 집 양평 유연재 裕軟齋 > HOUSE
넉넉하고 부드러운 집 양평 유연재 裕軟齋
- 관리자 오래 전 2025.11.12 09:59 HOUSE 인기
-
1,649
0
넉넉하고 부드럽게 변화하는 집을 원했던 가족.
모이고 싶을 때 모이면서도 가끔은 가족의 내밀함을 지켜줄 수 있는 집을 공인 패시브하우스라는 친환경 건축으로 합리적이고 알뜰하게 마련하였다.



커보이는 동측면에 비해 남측면은 콤팩트한 분위기를 띈다. 합리적인 볼륨을 갖도록 지붕의 변화를 디자인하고 남측면에 큰 창을 확보했기 때문이다.
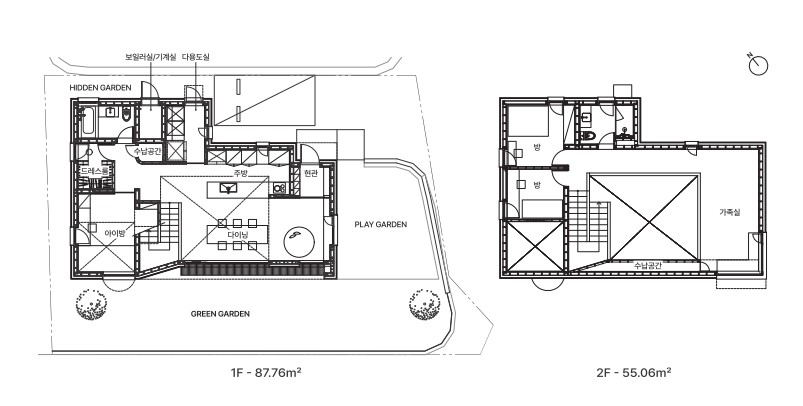
아이방, 아빠방,
엄마방, 가족실.
따로, 또 함께 모이는 집
커피 마시러 자주 찾던 양평에 반해 아예 살아볼까 하고 첫 주택 생활을 시작했다는 유쾌한 가족은, 첫 주택의 아쉬웠던 점을 보완하고 곧 초등학생이 되는 아들과 부부의 생활에 맞는 집,
답답하지 않고 건강한 합리적인 집을 짓고자 했다. 대지는 용문산과 남한강 사이에 남향으로 경사진 주택단지의 가운데에 위치해 집터에서 남향으로 마을의 풍경을 볼 수 있었다.
마을은 주택들의 외장재를 통일해 관리하고 있었기에 외향보다는 내부의 공간 구성과 필요한 기능을 고려해 충실히 설계하고자 했다.
건축주와 이야기하면서 집의 중심에 식탁을 두어야겠다는 판단을 했다. 초등학생인 아이에게 식탁이 사회적 관계를 배우고 형성하기 시작하는 근간이 되는 장소라고 생각했기 때문이다.
그렇기에 유연재의 식탁이 주방뿐 아니라 아이방, 현관, 마당 등의 여러 장소와 유연하게 관계를 맺게 함으로써이야기 꽃을 피우는 ‘동네 살롱’ 같은 분위기를 만들고 싶었다.
개방적인 볼륨을 갖도록 2층에서 오프닝을 유지하여 식탁이 집 전체와 소통토록 했다. 아이방은 1층 남측에 배치하여 마당과 가족과의 식사 시간을 우선하여 누리도록 하였다.
독서나 사색을 즐기는 가족실은 식탁 주변을 두르는 계단을 올라 갤러리의 전시 공간 같은 복도를 지나 끝에 나타난다. 한편, 2층의 아빠방과 엄마방은 서로의 프라이버시를 배려해 독립적으로 계획되었다.

해질 무렵의 빛과 따뜻한 조명이 마당과 유연재의 질감을 한층 살려주고 있다.

현관은 공간이 작지만 확장되어 보이게끔 디자인하였다. 간살중문을 닫더라도 시선이 마당까지 닿을 수 있도록 창을 두었다.

다이닝 공간은 식탁에 집중하면서도 수직, 수평적으로 충분한 여유로움을 가지도록 계획하였다. 상황에 따라 거실의 역할도 일부분 수행할 수 있다.

계단과 천장의 디자인으로 인해 유연재는 실내에서도 입체적인 공간감을 가질 수 있게 되었다.

아들방은 1층 식탁과 함께 이 집에서 또 하나의 중심공간이다. 남측에 햇살이 잘 드는 곳에 배치되었고 천장도 방들 중에 제일 높다. 단순히 비워진 방이 아니라
평상과 창문, 조명, 벙커공간을 통해 아이가 기억 속에 다양한 장소를 품도록 하였다.
패시브하우스 인증으로 기본에 충실한 집
유연재의 계획안이 어느 정도 방향을 정하고 있을 무렵 건축주와 기본에 충실한 집에 대해 이야기가 오가며 패시브 주택을 추천했다.
다만 이는 추가로 투자하는 비용과 과정에 대한 전략을 세우는 것이 필요했다. 우선 패시브 주택을 짓고자 하는 건축주가 필수적으로 고려하고 투자해야 하는 항목은 고단열,
열교 없는 디테일, 고성능 창호, 고기밀 공사, 열회수환기장치, 일사조절용 외부차양 정도이다.
유연재는 한국패시브건축협회의 인증 과정에 포함된 설계 컨설팅을 받으며 필요한 만큼의 성능을 구현하도록 패시브 요소를 검토하고 적용하였다.
건축주가 체크하고 선택할 수 있는 건강한 집짓기의 과학적 근거, 즉 설계 시공 가이드라인과 컨설팅 프로세스가 있고, 기밀테스트를 통해 검증한다는 것은
‘건축시장에서의 투명한 선택과 확인의 기회’라는 의미이고 동시에 장점이다.
지난 2월 착공한 유연재는 8월에 무사히 공사를 마치고 마을의 첫 패시브 인증 주택이 되었다.
건축주는 이웃과는 조금 다른 유형의 집을 원했고 정해진 예산 안에서 뺄 것과 더할 것을 고민하여
단순하면서도 작은 변화를 가진 건강한 집을 만났다. 우리는 집의 일부를 말랑하고 도란도란한 장소로 만들고 싶었다.
좋은 이웃과 함께 오랫동안 이름처럼 여유로움과 부드러움이 늘 머무는 집이 되길 바라며. 글 : 장정우

가족실은 남, 동측으로 마을과 양평의 풍경을 담도록 코너창을 계획하였다. 윈도우 시트와 수납공간이 있다.

아이는 창을 통해 마당에 함께 심은 나무와 꽃을 볼 수 있다. 한여름 일사를 조절하기 위한 기능의 차양이지만 아들방에 유머러스한 표정을 만들어
주도록 디자인을 가미하였다.

해질 무렵의 마당. 화려하지 않지만 가족이 충분히 즐길 수 있는 정원이 될 것으로 기대한다.


HOUSE PLAN
대지위치 : 경기도 양평군
대지면적 : 271㎡(81.97평)
건물규모 : 지상 2층
거주인원 : 3명(부부, 자녀 1)
건축면적 : 94.63㎡(28.62평)
연면적 : 142.82㎡(43.20평)
건폐율 : 34.92%
용적률 : 52.70%
주차대수 : 1대
구조 : 기초 – 철근콘크리트 매트기초 T400 / 지상 –
경골목구조 외벽 : 2×6 S.P.F 구조목, 내벽 : 2×4
S.P.F 구조목 / 지붕 - 2×10 S.P.F 서까래
단열재 : 외벽 – T140 셀룰로오스 가등급, T38
그라스울 32K 가등급 2겹(외단열) / 지붕 – T235
셀룰로오스 가등급, T38 셀룰로오스 가등급(외단열) /
바닥 – 기초 : T100 압출법보온판 특호 2겹, T70
압출법보온판 특호, T50 비드법보온판 1호 2겹
외부마감재 : 벽 – 우성벽돌타일 슬림그레이, T0.5
컬러강판 / 지붕 – T0.5 컬러강판 돌출이음
담장재 : 큐블럭, T5 평철 난간
창호재 : 엔썸 케멀링 88mm 삼호글라스 T47
철물하드웨어 : 심슨스트롱타이
열회수환기장치 : Komfovent domeket 450
에너지원 : LPG(도시가스 예정)
전기·통신 : ㈜성진티이씨
기계설비 : ㈜건창기술단
구조설계(내진) : ㈜인터이앤씨
시공 : 빌드앤픽스㈜
설계 : 건축사사무소 사무소아홉칸 장정우, 박경미
INTERIOR SOURCE
내부마감재 : 벽 - 벤자민무어 친환경 도장, 에덴바이오
벽지, 템바보드(오크) / 바닥 - 노바강마루 블랑오크
욕실 및 주방 타일 : 수입 포세린타일
수전 등 욕실기기 : 더죤테크 수전, DBATH 욕조
주방 가구 : 한샘(템바보드)
조명 : 벨로엘이디 매립등 3인치, T5 LED 디밍 조명,
세시오후 계단 유도등 등
계단재 · 난간 : 계단재 – 애쉬 집성목 위 티쿠릴라
바니쉬 / 핸드레일 – 벤자민무어 친환경 도장 위 코팅
현관문 : 살라만더 S-G1-01
중문 : 제작 간살도어(미송)
방문 : 예림
데크재 : 방킬라이
PASSIVE REPORT
난방성능 : 4.0(ℓ/㎡·yr)
환기장치효율(난방효율) : 86%
난방면적 : 119.6㎡
난방에너지요구량 : 40.38kWh/㎡·yr
난방부하 : 26.2W/㎡
냉방에너지요구량 : 28.20 kWh/㎡·yr
기밀도(n50) : 0.54회/h
1차에너지소요량 : 114kWh/㎡·yr
건축가 장정우, 박경미 :
건축사사무소 사무소아홉칸
몸에 잘 맞는 맞춤복이 옷을 입은 사람의 매너를 드러내고 자세를 바르게 바꾸듯, 건축주의 생활에 잘 맞는 집은 자신과 타인을 생각하는 건축주의 품위를 드러내며 삶의 아름다운 변화를 가져온다고 생각한다.
건축사사무소 사무소아홉칸은 관계와 일상을 디자인하고 지역을 기반으로 아름다운 건축적 흔적을 만들어 가고자 한다.
070-8865-1098 | https://office9kahn.com
- 이전글자연을 향한 동경 청라 삼대가 함께 사는집2025.11.14
- 다음글유쾌한 귀촌 도전기 VIMEVIME in HADONG2025.11.11
댓글목록
등록된 댓글이 없습니다.